Prodej luxusního bytu 2kk (2+1) po kompletní rekonstrukci, v centru města Pardubice.

4.680.000 ,-
Celkem 16 fotografií, zobrazit všechny
Prodejce:
realitní makléř: Lucie Kopecká
Lucie Kopecká
telefon: + 420 731 581 011
lucie.kopecka@domybyty.com

Prodej luxusního bytu 2kk (2+1) po kompletní rekonstrukci, v centru města Pardubice.

4.680.000 ,-
Popis nemovitosti:

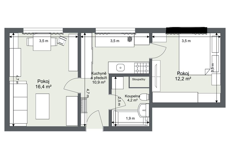
Na základě výhradního zastoupení nabízím k prodeji luxusní a do posledního detailu laděný byt po kompletní a velmi pečlivé rekonstrukci, který díky své promyšlené dispozici 2kk (2+1) poskytuje nadstandardní pohodlí i praktičnost. Oba pokoje jsou samostatné a neprůchozí díky čemuž byt působí prostorněji a variabilněji. Kuchyně je elegantně integrována mezi pokoji a jen podtrhuje celkové uspořádání bytu, kde je opravdu využitý každý centimetr.

Družstevní byt o celkové výměře 44 m² se nachází ve druhém patře panelového domu s výtahem na adrese Arnošta z Pardubic 2599, v bezprostřední blízkosti samotného centra Pardubic. Lokalita je výjimečná svou dostupností, veškerými službami v okolí a celkovou městskou atmosférou.

Další velkou výhodou je i investiční potenciál. Byt je v současné době pronajatý velmi solidními a spolehlivými nájemci za tržní měsíční nájemné což novému majiteli může poskytnout okamžitý a bezstarostný výnos.
Tato nemovitost představuje jedinečnou příležitost ke koupi krásného, precizně zrekonstruovaného bytu v oblíbené části Pardubic, který upoutá svým stylem, praktičností i výbornou návratností investice.


 

Typ nemovitosti:
Byt
Číslo nemovitosti:
2025-11-14
Typ bytu:
2+kk
Operace:
Prodej
Vlastnictví:
Družstevní
Adresa:
Pardubice
Pardubice I
Arnošta z Pardubic 2599
K nastěhování od:
1.1.2026
Plocha podlahová:
44 m2
Plocha sklepa:
3 m2
Podlaží:
2. podlaží
Stav objektu:
Velmi dobrý
Konstrukce:
Panelová
Umístění objektu:
Centrum obce
Vydaný certifikát:
D - Méně úsporná
Typ certifikátu:
vyhláška č. 264/2020 Sb
Je zobrazena tato GPS souřadnice:
50° 02' 1.605"N, 15° 46' 39.048"E

Finanční kalkulačka

Líbí se Vám tato nemovitost, ale nemáte v současné době dostatek finančních prostředků? Rádi Vám poskytneme možnost financování.


Částka:

Úrok:
%

Doba splácení:
let

Měs. splátka: